Продажа 3х-комнатной квартиры

Кировская область, Киров, ул Опарина, 5

50 м²
Площадь
34,9 м²
Жилая площадь
5.80 м²
Площадь кухни
3/5
Этаж

4 500 000 ₽

89 464 ₽ за м²

ID объявления 12420840

Поделиться

Добавить в избранное

Арт. 91233356. * Продается 3-комнатная квартира в центре Нововятского района по адресу: город Киров, улица Опарина, дом 5. Квартира расположена на комфортном 3 этаже 5-этажного кирпичного дома 1976 года постройки. Отличный дом, построенный Нововятским механическим заводом, изначально, под итальянских специалистов, которые оборудовали и налаживали завод электроплит, поэтому дом сдавался с жесткой проверкой всех нормативных актов.

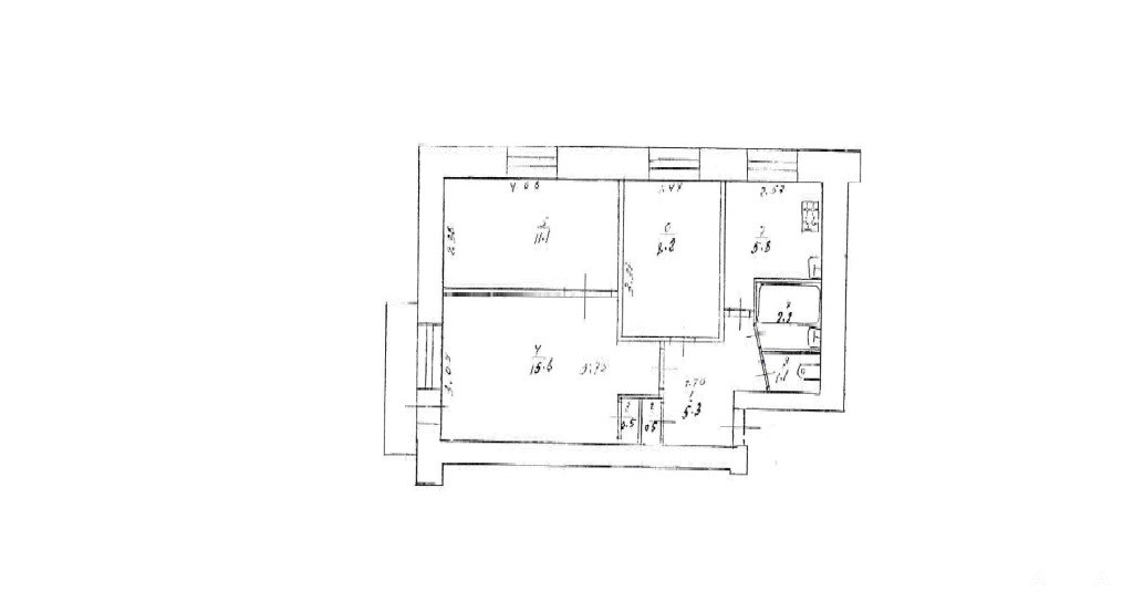
* Квартира общей площадью 50, 3 кв.м., комнаты: 15, 6 кв.м., 11, 1 кв.м. и 8, 2 кв.м., кухня: 5, 8 кв.м., прихожая: 5, 3 кв.м., санузел раздельный, балкон: 3 кв.м. застеклен. Квартира очень теплая и светлая. Вода артезианская, можно пить из под крана.

* В квартире сделан хороший ремонт: установлены пластиковые окна, на полу износостойкий линолеум, в санузле качественный кафель, заменены водопроводные трубы. Остается кухонный гарнитур с газовой плитой. Так как квартира компактная, то коммунальные платежи будут комфортные: 5, 5 тыс., зимой и 2, 2 тыс. летом.

* Чистый аккуратный подъезд, установлены пластиковые окна, хорошие дружные соседи. Ухоженная придомовая территория. Сделан ремонт входных групп в подъезды, цоколь дома выложен керамогранитом, у подъездов красивые клумбы.

* В квартире оставим: кухонный гарнитур, газовую плиту.

* Дом в центре Нововятского района, на пересечении улиц Опарина и Молодой Гвардии. Вторая линия от центральной дороги, поэтому не будет шума и пыли. В непосредственной близости: школа № 66, школа искусств, детский сад № 222. Вся необходимая инфраструктура рядом: магазины "Магнит", "Йола", "Пятерочка", торговые центры "Вектор", "Олимп", остановки общественного транспорта - 3 минуты пешком, поликлиники (взрослая, детская, стоматологическая), детские сады №224 и №220, обновленная набережная реки Вятка.

* Подходит под любую форму оплаты: любые сертификаты, материнский капитал, ипотеку, поможем с оформлением под минимальный процент. Собственники совершеннолетние, долгов и обременений нет.

Дата обновления: 28 января 2026

Квартира Ипотека От собственника