Продажа 1-комнатной квартиры

Кировская область, Киров, ул Кирова (Нововятский), 57А

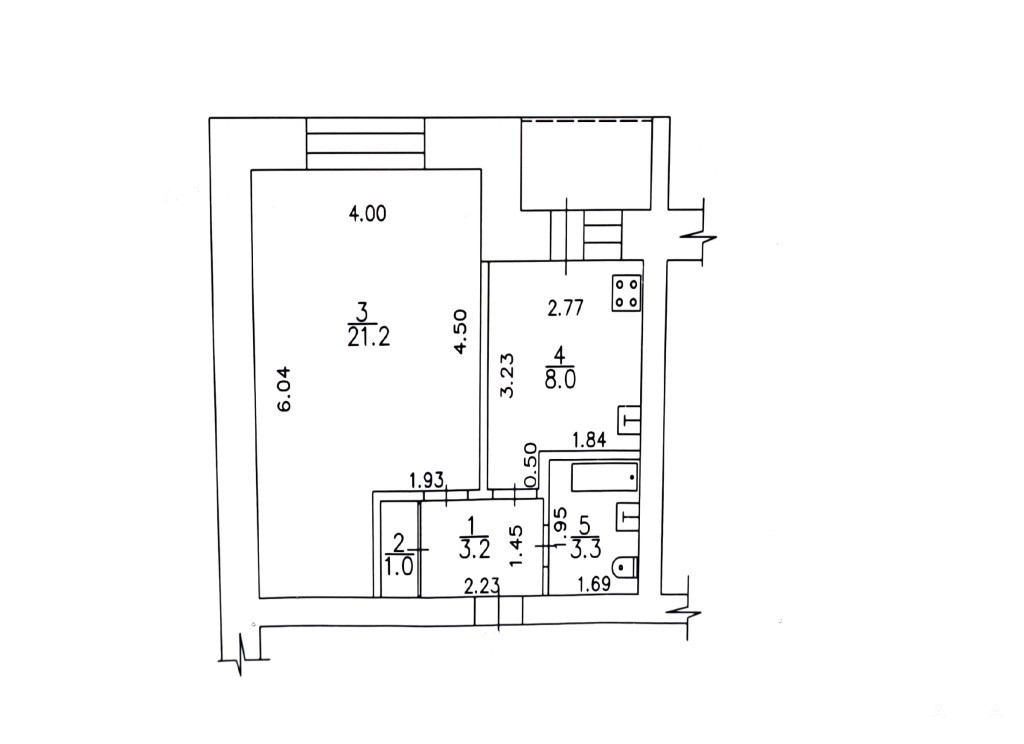
37 м²
Площадь
21,2 м²
Жилая площадь
8.00 м²
Площадь кухни
3/5
Этаж

2 900 000 ₽

79 020 ₽ за м²

ID объявления 12232871

Поделиться

Добавить в избранное

Арт. 89564721. Продается однокомнатная квартира новой планировки по адресу: город Киров, улица Кирова, дом 57А. Квартира находится на комфортном 3 этаже 5-этажного кирпичного дома 1989 года постройки. Квартира общей площадью 36, 7кв.м., функциональная комната 21, 2 кв.м. с нишей, в которой можно оборудовать спальную либо рабочую зону, большая кухня, объединена с лоджией, совмещенный санузел.

В квартире сделан ремонт: пластиковые окна, натяжные потолки, коммерческий высокопрочный линолеум, в ванной комнате современная плитка, новые входные двери, утепленная лоджия.

Остается кухонный гарнитур с газовой плитой, встроенный шкаф купе в прихожей, мойка, навесной шкаф с зеркалом в ванной комнате.

В доме есть Совет дома, председатель, все вопросы решаются оперативно и дружно.

Вся инфраструктура близко: 2 школы, 3 детских сада, парк, дом культуры, церковь, остановка общественного транспорта, поликлиника, магазины "Пятерочка", "Магнит", "Весна".

Подходит под все виды сделок: сертификаты, материнский капитал, ипотеку, поможем получить под минимальный процент. Рассмотрим вариант обмена.



Дата обновления: 5 декабря 2025

Квартира Ипотека